ELEGANTE QUADRILOCALE CON ASCENSORE, BALCONE, DOPPI SERVIZI E CANTINA
- 128m²
- 4 locali
- 2(3)
Descrizione
Se oggi senti che la tua casa ti sta stretta, qui trovi finalmente lo spazio che manca.
Ambienti comodi, ben distribuiti e tanta luce naturale durante tutta la giornata.
Una soluzione pensata anche per chi lavora a Milano ma vuole vivere con più tranquillità, senza rinunciare alla comodità dei collegamenti.
Per aiutarti a visualizzarne tutto il potenziale, abbiamo inserito alcuni render che mostrano come potrebbe diventare con un arredo moderno e contemporaneo.
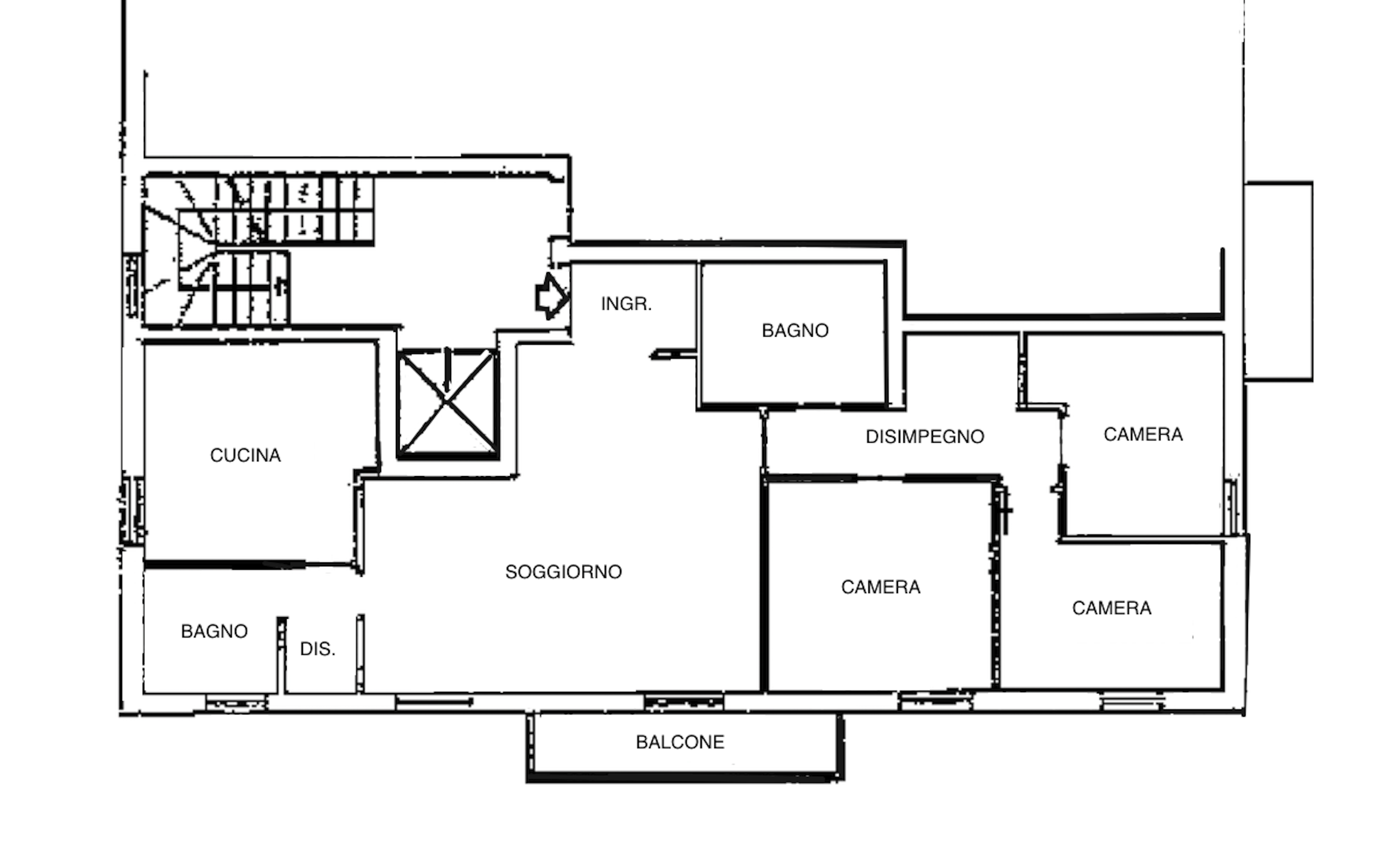
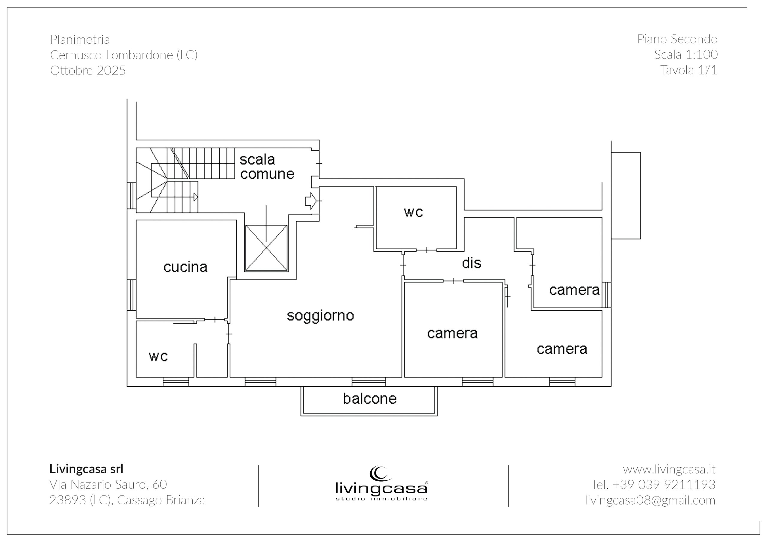
L’ingresso accoglie con una sensazione immediata di casa vissuta bene, ordinata, funzionale.
La zona giorno si apre in un ampio soggiorno, uno spazio dove finalmente puoi vivere davvero: relax, ospiti, famiglia… senza dover scegliere cosa sacrificare.
Il balcone diventa uno sfogo naturale, perfetto per staccare a fine giornata.
La cucina è abitabile, pensata per chi ama cucinare senza rinunciare alla convivialità, con tutto lo spazio necessario per la vita di tutti i giorni.
Il bagno di servizio completa la zona giorno, rendendola pratica e ben organizzata.
La zona notte è quella che oggi cercano tutti… ma che raramente si trova così ben distribuita:
tre camere da letto vere, dove ognuno ha il proprio spazio, senza adattamenti.
Il secondo bagno garantisce privacy e gestione fluida della routine familiare.
La casa è libera su tre lati: questo significa luce piena durante tutta la giornata, grazie all’esposizione Est-Sud-Ovest.
E significa anche silenzio, tranquillità, qualità della vita.
Il contesto è un plus di questa casa:
• Palazzina storica completamente ristrutturata nel 2004
• Ascensore
• Ottimo isolamento acustico
• Giardino condominiale curato
• Stazione ferroviaria a pochi minuti (collegamento diretto con Milano)
• Vicinanza tangenziale Est
• Tutti i servizi di Merate a portata di mano
Dotazioni:
• Aria condizionata canalizzata
• Impianto antifurto
• Fibra ottica
• Videocitofono
• Parquet zona giorno e notte
Possibilità box a parte.
Ideale per famiglia che ha bisogno di spazi veri e vuole migliorare la qualità della vita, restando ben collegata con Milano.
Appartamenti con queste caratteristiche sono sempre più richiesti e difficili da trovare.
Se stai cercando una soluzione definitiva, contattaci subito per fissare una visita
Farmacia
Ristoranti
Scuole
Supermercato
Tangenziale
Caratteristiche uniche
- antifurto
- aria condizionata
- ascensore
- balcone
- cancello elettrico
- doppi servizi
- doppi vetri
- fibra ottica
- parco condominiale
- porta blindata
- riscaldamento autonomo
Classe energetica
EIPE: 127,37kWh/m²
Riepilogo costi
- Prezzo immobile: € 260.000
- Spese condominiali: € 166/mese








































